Chargement...

Préfabriqué Kit Eco

Résistance au vent 250km/h (Niveau 16) !

Modèles de 50, 66, 74, 105, 135 et 148 m²

Les murs sont en bois OSB ou Fibro Ciment Lisse 100 mm !

Prix "Achats Groupés"
Rejoignez votre Groupe WhatsApp

Nouvelle-Calédonie - Polynésie - Wallis-et-Futuna

Destockage NC - Préfabriqué Kit Éco

Points forts

  • Résiste à 250 Km/h de Vent !
  • Anti sismique: deuxième niveau (9 degrés)
  • Haute résistance: structure inférieure en acier
  • Surface de 50 à 148 m²
  • Durée de Vie Grantie 50 ans
Montage

Facile

Livraison

En Kit

Structure des Murs très Résistante !

Structure du cadre: cadre + plaque de cisaillement

  • 1- Panneau intérieur: OSB de 9 mm (ou fibre de ciment de 9 mm)
  • 2- Panneau ignifuge
  • 3- Panneau extérieur: OSB de 9 mm (ou fibre de ciment de 9 mm)
Destockage NC - Préfabriqué Kit Éco
Destockage NC - Préfabriqué Kit Éco

Mur, option bambou

Le Bambou, écologique et durable, offre résistance et esthétique.

  • 1- Planche en bambou
  • 2- Panneau intérieur: OSB de 9 mm
  • 3- Panneau ignifuge
  • 4- Panneau extérieur: OSB de 9 mm
  • 5- Papier respirant
  • 6- Panneau externe en ciment de 1 mm
  • Mur SDB imperméable

Mur option peinture

Peinture haute qualité

  • 1- Peinture, couleur au choix
  • 2- Panneau intérieur: OSB de 9 mm
  • 3- Panneau ignifuge
  • 4- Panneau extérieur: OSB de 9 mm
  • 5- Peinture, couleur au choix
Destockage NC - Préfabriqué Kit Éco
Destockage NC - Préfabriqué Kit Éco

Toit

  • 1- Ferme de toit série 70
  • 2- Ferme de toit série 70
  • 3- Support plafond série 70
  • 4- Panne de toit
  • 5- Faisceau principal 80x40x15
  • 6- Revêtement ondulé large 780 mm
  • 6- Gouttière PVC

Acier galvanisé à chaud

  • 1- Couche glavanisé à chaud
  • 2- Acier
  • 3- Couche glavanisé à chaud
  • 4- Revêtement aluminium-zinc-magnésium en surface

L'ossature générale du bâtiment est galvanisée et stérilisée. Le revêtement à chaud est uniforme, l'effet anti-corrosion et la durée de vie sont les meilleurs de toutes les méthodes.

Destockage NC - Préfabriqué Kit Éco
Destockage NC - Préfabriqué Kit Éco

Excellente résistance structurelle

  • 1- Poutre
  • 2- Pilier
  • 3- Pilier latéral
  • 4- Panneau mural
  • 5- Rainure en forme de U

La structure inférieure de la maison adopte une ossature en acier, plus une plaque de partage. Les colonnes, les poutres, les panneaux muraux, et le cadre sont tous reliés en un tout. Ce qui procure une excellente résistance structurelle à l'ensemble.

Installation facile !

Le processus d'installation requiert un faible niveau de connaissances techniques et ne nécessite aucun engin spécialisé. Les clients adeptes du bricolage peuvent effectuer le montage par eux-mêmes en suivant les plans fournis. C'est l'occasion de profiter du plaisir de construire sa propre maison avec ses amis.

Destockage NC - Préfabriqué Kit Éco

Galerie Photos

Découvrez les Préfabriqués kit Éco en Images

Toutes Extérieur Intérieur Plan

Galerie Vidéos

Découvrez les Préfabriqués kit Éco en Vidéos

Sara Kit Éco 50 - Intérieur/Extérieur
Mona Kit Éco 66 - Intérieur/Extérieur
Joy Kit Éco 74 - Extérieur

TOP PROMO sur nos KIT ÉCO

Top Qualité 5*
Tous nos Préfabriqués sont Anticyclonique 250 km/h !

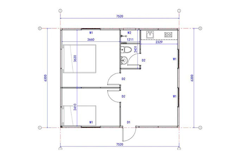
Sara Kit Éco 50

4 900 000 XPF

4 100 000 XPF

Sara Kit Éco 50
Le prix inclus:
  • 50 m² 2 Chambres
  • Base métallique
  • Murs Fibro Ciment
  • Placage Murs Intérieur
  • Porte Entrée Métal
  • 4 Fenêtres Alu + 1 SDB
  • 4 Moustiquaires
  • Cuisine
  • Salle de Bain: Douche, Toilettes, Lavabo
  • Placage Murs Salle de Bain
  • Sol: Parquet Composite
  • Plafonnier LED
  • Électricité Norme CE
  • Gouttières
  • Options : Volets roulants, Terrasse couverte

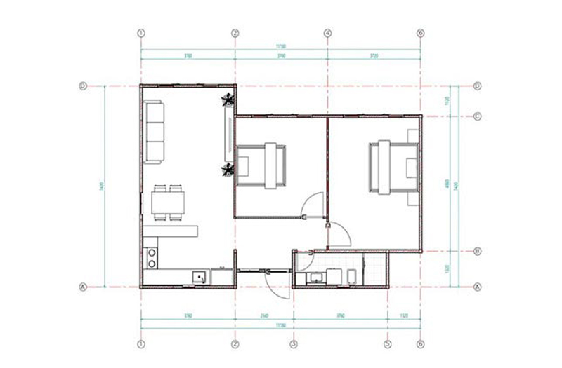
Mona Kit Éco 66

6 600 000 XPF

5 168 000 XPF

Mona Kit Éco 66
Le prix inclus:
  • 66 m² 3 Chambres
  • Base métallique
  • Murs Fibro Ciment
  • Placage Murs Intérieur
  • Porte Entrée Vitrée
  • 4 Fenêtres Alu + 2 SDB
  • 4 Moustiquaires
  • Cuisine
  • 2 Salles de Bain: Douche, Toilettes, Lavabo
  • 2 Placages Murs Salle de Bain
  • Sol: Parquet Composite
  • Plafonnier LED
  • Électricité Norme CE
  • Gouttières
  • Options : Volets roulants, Terrasse couverte

Joy Kit Éco 74

7 400 000 XPF

6 052 000 XPF

Joy Kit Éco 74
Le prix inclus:
  • 74 m² 2 Chambres
  • Base métallique
  • Murs Fibro Ciment
  • Placage Murs Intérieur
  • Porte Entrée Vitrée + 3 Baies Vitrées
  • 4 Fenêtres Alu + 2 SDB
  • 4 Moustiquaires
  • Cuisine
  • 1 Salle de Bain: Douche, Toilettes, Lavabo
  • 1 Placage Murs Salle de Bain
  • Sol: Parquet Composite
  • Plafonnier LED
  • Électricité Norme CE
  • Gouttières
  • Options : Volets roulants, Terrasse couverte

Lisa Kit Éco 105

10 500 000 XPF

8 040 000 XPF

Lisa Kit Éco 105
Le prix inclus:
  • 105 m² 2 Chambres
  • Base métallique
  • Murs Fibro Ciment
  • Placage Murs Intérieur
  • Porte Entrée Métal
  • 6 Fenêtres Alu + 2 SDB
  • 6 Moustiquaires
  • Cuisine
  • 2 Salles de Bain: Douche, Toilettes, Lavabo
  • 2 Placages Murs Salle de Bain
  • Sol : Parquet Composite
  • Plafonnier LED
  • Électricité Norme CE
  • Gouttières
  • Options : Volets roulants, Terrasse couverte

Rosa Kit Éco 135

13 500 000 XPF

10 980 000 XPF

Rosa Kit Éco 135
Le prix inclus:
  • 135 m² 3 Chambres
  • Base métallique
  • Murs Fibro Ciment
  • Placage Murs Intérieur
  • Porte Entrée Vitrée + 3 Baies Vitrées
  • 5 Fenêtres Alu + 2 SDB
  • 5 Moustiquaires
  • Cuisine
  • 2 Salles de Bain: Douche, Toilettes, Lavabo
  • 2 Placages Murs Salle de Bain
  • Sol: Parquet Composite
  • Plafonnier LED
  • Électricité Norme CE
  • Gouttières
  • Options : Volets roulants, Terrasse couverte

Sirena Kit Éco 148

14 800 000 XPF

12 604 000 XPF

Sirena Kit Éco 148
Le prix inclus:
  • 148 m² 3 Chambres
  • Base métallique
  • Murs Fibro Ciment
  • Placage Murs Intérieur
  • Porte Entrée Métal + 2 Baies Vitrées
  • 3 Fenêtres Alu + 2 SDB
  • 3 Moustiquaires
  • Cuisine
  • 2 Salles de Bain: Douche, Toilettes, Lavabo
  • 2 Placages Murs Salle de Bain
  • Sol: Parquet Composite
  • Plafonnier LED
  • Électricité Norme CE
  • Gouttières
  • Options : Volets roulants, Terrasse couverte

Comment Bénéficier de nos Tarifs ? Tout Simplement en Commandant directement en Ligne avec nous !
Les Services Locaux (livraison, dépotage, fondations, montage), sont facturés par nos partenaires locaux.
Les prix incluent : Le Matériel, toutes les Options stipulées sur votre Devis, le contrôle qualité et documentations douanière.
Le Transport Maritime & Taxes douanières dépendent de votre destination.

Recevez votre Devis en remplissant le formulaire ci-dessous